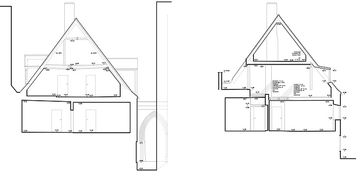
• Denkmalgeschützte Villa, München
  • 1
  • 2
  • 3
  • 4
  • 5
  • 6
  • 7
  • Altstadtgebäude, Freising
  • Ruffiniblock, München
  • Historische Gaszählerwerkstätte, München
  • Studentenwohnheim, München
  • Villa, München
  • Dachstuhl, München
  • Interior Design
  • Möbeldesign
  • Visualisierung
  • Bestandsaufnahme
  • Profil
  • Kontakt
  • Impressum
  • pdf-download